agenzia immobiliare gheode antonella

 

 

 

 

 

 

 

 

 

 

 

 

 

 

 

 

Ricerca Immobile

Riferimento:

TuttiVendita Affitto


Tipo

Località

Prezzo (max)



 In Vetrina
 In Vendita
 In Affitto
 I nostri Servizi
 Contattaci

Agenzia associata FIMAA

 

Via Panfilia, 60 - 48121 RAVENNA      Gheode.it su Facebook                 

  



La tua casa a Ravenna e dintorni...

Cerchi casa a Ravenna e dintorni? Oppure vuoi vendere o affittare il tuo immobile? L'esperienza dell' Agenzia Immobiliare Gheode Antonella e' al Tuo servizio per soddisfare ogni esigenza con professionalita' e riservatezza.

 

Scheda immobile


 

 

 

RAVENNA in VENDITA


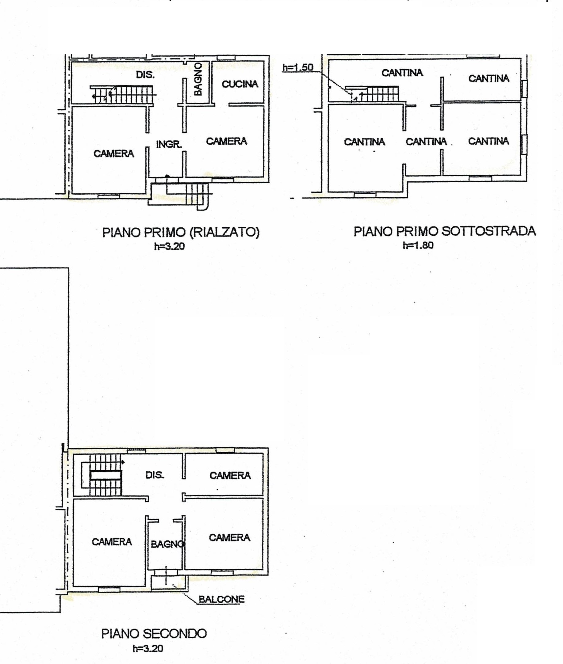
Rif.1841 S. ROCCO: CASA INDIPENDENTE di circa 270 mq, ben tenuta ma da rimodernare , composta da ingresso, cucinotto e sala da pranzo, soggiorno, 2 bagni, 3 camere da letto ; ampi servizi sottostanti, giardino privato. Adiacente, con possibilità di ingresso separato, appartamento composto da cucina con dispensa, sala, camera da letto, bagno e piccola zona verandata. Al piano seminterrato zona servizi ,Garage, Giardino. Cl en G € 335.000 trattabili


agenzia immobiliare ravenna affitti case vendita

agenzia immobiliare ravenna affitti case vendita

agenzia immobiliare ravenna affitti case vendita

agenzia immobiliare ravenna affitti case vendita

agenzia immobiliare ravenna affitti case vendita

agenzia immobiliare ravenna affitti case vendita

agenzia immobiliare ravenna affitti case vendita

agenzia immobiliare ravenna affitti case vendita

agenzia immobiliare ravenna affitti case vendita

agenzia immobiliare ravenna affitti case vendita

agenzia immobiliare ravenna affitti case vendita

agenzia immobiliare ravenna affitti case vendita

agenzia immobiliare ravenna affitti case vendita

agenzia immobiliare ravenna affitti case vendita

agenzia immobiliare ravenna affitti case vendita

agenzia immobiliare ravenna affitti case vendita

agenzia immobiliare ravenna affitti case vendita

Chiedi info                                             chiudi scheda

 

 

  agenzia immobiliare ravenna

 

 

 

 Agenzia Immobiliare Gheode Antonella - Via Panfilia, 60 - 48121 RAVENNA - P.Iva: 02481590392 - REA: 205956

tel/fax: 0544 471237 - cell: 348 0080027 - email: antonella@gheode.it